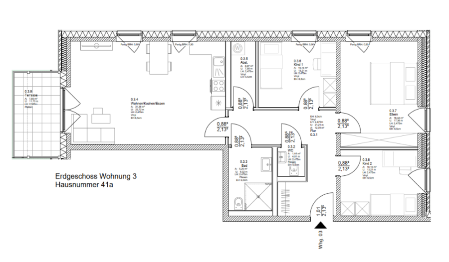
4-Zimmer-Wohnung mit WBS in Rheurdt

47509 Rheurdt, Erdgeschosswohnung zur Miete

Kontaktdaten

Objektdaten

  • Objekt ID
    4117 - 3
  • Objekttypen
    Erdgeschosswohnung, Wohnung
  • Adresse
    Hochend 41a
    47509 Rheurdt
  • Wohnfläche ca.
    91,68 m²
  • Zimmer
    4
  • Heizungsart
    Fußbodenheizung
  • Zustand
    Erstbezug
  • Verfügbar ab
    01.08.2026
  • Kaution
    1.829,01 EUR
  • Kaltmiete
    609,67 EUR
  • Miete pro m²
    6,65 EUR
  • Heizkosten
    105,43 EUR
  • Nebenkosten
    215,45 EUR
  • Warmmiete
    930,55 EUR

Ausstattung / Merkmale

  • Barrierefrei
  • Dusche
  • Neubau
  • Wohnberechtigungsschein erforderlich

Objekt­beschreibung

Sonstige Informationen

Diese ca. 91 m² große Wohnung befindet sich im Erdgeschoss einer neu errichteten Wohnanlage mit insgesamt 10 öffentlich geförderten Wohneinheiten. Eine weitere 4-Zimmer-Wohnung liegt im 1. Obergeschoss. Die Wohnungen werden voraussichtlich zum 01.08.2026 bezugsfertig.

Zu den Wohnungen gehört ebenfalls ein Balkon. Das Gebäude wird barrierefrei aber ohne Aufzug errichtet. Zur Anmietung ist ein Wohnberechtigungsschein für die Einkommensgruppe A zwingend erforderlich.

Zudem wird das benachbarte baugleiche Gebäude voraussichtlich zum 01.09.2026 bezugsfertig, wo sich ebenfalls eine 4-Zimmer-Wohnung im Erdgeschoss und im Obergeschoss befindet.

Einen Stellplatz für Ihr Auto können Sie separat anmieten.

Lage

Hochend 41a, 47509 Rheurdt, Deutschland (Größere Karte ansehen)

Direktanfrage

 SSL-verschlüsselt
Wir sind ein modernes Dienstleistungsunternehmen. Zu unseren Hauptaufgaben gehört die Abwicklung von Baumaßnahmen im Hoch- und Tiefbaubereich für den Kreis Kleve. Darüber hinaus zählt der Erwerb, die Betreuung, die Bewirtschaftung, die Vermietung und die Verwaltung von Objekten im Hochbaubereich zu den Hauptaufgaben der Gesellschaft.

Kreis Kleve Bauverwaltungs-GmbH
Dr.-Franken-Str. 1
47551 Bedburg-Hau

Telefon: 02821 97709-0
Fax: 02821 97709-29
E-Mail: info@kkbgmbh.de